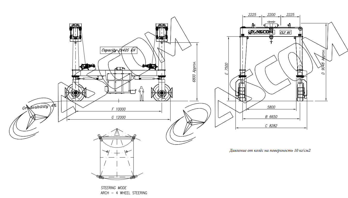
Компания Ascom-Russia представляет Вашему вниманию подъемник для работы с преднапряженными балками пролетных строений. Подъемник предназначен для эксплуатации на предприятиях, изготавливающих мостовые железобетонные конструкции, как существующих, так и вводимых в эксплуатацию, в том числе на выездных мобильных участках и полигонах по производству МЖБК.


















